Devonporthomesforsale
powered by Open2view.com
Region
Ferndale
Hurdon
Westown
Spotswood
Lynmouth
Moturoa
Opunake
Hawera
Stratford
Ohakune
Whanganui
Prestons Real Estate
Aranui Real Estate
Linwood Real Estate
Marshlands Real Estate
Northcote Real Estate
Lincoln Real Estate
Templeton Real Estate
West Melton Real Estate
Prebbleton Real Estate
Tai Tapu Real Estate
Mangerebridgerealestate
Aidanfield Real Estate
Parklands Real Estate
New Brighton Real Estate
Lyttelton Real Estate
Ferrymead Real Estate
Burnside Real Estate
Oxford Real Estate
Woodend Real Estate
Kaiapoi Real Estate
Shirley Real Estate
Saint Martins Real Estate
Saint Albans Real Estate
Redwood Real Estate
Burwood Real Estate
Beckenham Real Estate
Hornby Real Estate
Wigram Real Estate
Sydenham Real Estate
Spreydon Real Estate
Halswell Real Estate
Wharewakarealestate
2milebayrealestate
Nukuhaurealestate
Rangatiraparkrealestate
Waipahihirealestate
One tree point
Tikipunga
Hikurangi
Maungatapere
Tutukaka
Ngunguru
Dargaville
Kensington
Onerahi
Maunu
Central Otago Holiday & Vacation Rentals
Wanaka Holiday & Vacation Rentals
Queenstown Holiday & Vacation Rentals
Central Otago Luxury Real Estate
Wanaka Luxury Real Estate
Queenstown Luxury Real Estate
Jacks Point Village Real Estate
Jacks Point Real Estate For Sale
Cromwell Real Estate
Arthurs Point Real Estate
Alexandra Real Estate
Shotover Country Real Estate
Lake Hayes Estate Real Estate
Kelvin Heights/Kawarau Falls Real Estate
Fernhill & Sunshine Bay Real Estate
Dalefield Real Estate
Closeburn Real Estate
Gibbston Valley Real Estate
Arrowtown Real Estate
Central Otago Real Estate
Albert Town Real Estate
Northlake Wanaka Real Estate
Queenstown Lakes Real Estate
South Canterbury Real Estate
Rolleston Real Estate
Mount Pleasant Real Estate
Redcliffs Real Estate
Sumner Real Estate
Bishopdale Real Estate
Ilam Real Estate
Edgeware Real Estate
Fendalton Real Estate
Riccarton Real Estate
Far North
Kaipara
Russell
Ahipara
Doubtless bay
Bay of islands
Tomarata
Te arai
Mangawhai heads
Mangawhai
Waipu
Ruakaka
Whangarei heads
Whangarei
Kamo
Matapouri
Opua
Paihia
Rototunapropertyforsale
Flagstaffhomesforsale
Tamahererealestateforsale
Hamiltoneastpropertyforsale
Hamilton City Real Estate
Craigsflat
Ngaio
Wellingtonnorthland
Kaiwharawhaura
Flat Bush Property
Woodridge
Masterton
Greytown
Featherston
Akatarawa
Temarua
Birchville
Mangaroa
Timberlea
Brownowl
Maoribank
Totarapark
Cloustonpark
Pegasus Real Estate
Kingsleyheights
Wallaceville
Elderslea
Trentham
Silverstream
Pinehaven
Stokesvalley
Belmont
Avalon
Epuni
Boulcott
Melling
Harbourview
Normandale
Maungaraki
Fairfield
Waterloo
Waiwhetu
Moera
Woburn
Alicetown
Korokoro
Ava
Naenae
Wainuiomata
Islandbay
Ronotai
Lyallbay
Miramar
Kilbirnie
Hataitai
Newtown
Brooklyn
Kelburn
Karori
Wadestown
Khandallah
Ashhurst
Bunnythorpe
Palmerstonnorth
Foxton
Otakibeach
Otaki
Tehoro
Tehorobeach
Pekapeka
Waikanaebeach
Waikanae
Otaihanga
Paraparaumubeach
Raumatibeach
Paraparaumu
Pukeruabay
Paekakariki
Plimmerton
Camborne
Pauatahanui
Titahibay
Whitby
Papakowhai
Ascotpark
Waitangirua
Cannonscreek
Ranui
Takapuwahia
Elsdon
Kenepuru
Linden
Tawa
Redwood
Takapuvalley
Grenadanorth
Ohariu
Glenside
Churtonpark
Grenadavillage
Paparangi
Newlands
Broadmeadows
Johnsonville
Upperhutt
Pukehinapropertyforsale
Petone property for sale
Pukehinahomesforsale
Remuerapropertyforsale
Taumarunuirealestate
Ngongotaharealestate
Real Estate Rotorua East-Side
Northwestaucklandpropertyforsale
Otago University Flats for sale
Lynmoreschoolzone
Westernbaylaketaupo
Kinlochproperty
Turangiproperty
Franklinareapropertyforsale
Rangiora Property for Sale
Manukaucityhousesforsale
Rodneylifestyleproperty
Northshorelifestyleproperty
Waitakerecitypropertyforsale
Westaucklandpropertyforsale
Lakeokarekaproperty
Waihibeachrealestate
Ruralrealestateforsalebayofplenty
Coastalrealestateforsale
Matamatarealestateforsale
Teawamuturealestate
Realestateforsalebayofplenty
Papamoapropertyforsale
Aucklandcitypropertyforsale
Parnellpropertyforsale
Milfordrealestate
Northshoreinnerharbourhomes
Takapunahomesforsale
Matakanadistricthomesforsale
Devonporthomesforsale
Rodneyrealestateforsale
Hibiscuscoastalproperty
Coatesvillehomesforsale
Centralnorthshoreproperty
Albanyhomesforsale
Eastcoastbayshomes
Coastal Properties for Sale in Dunedin
Properties for Sale on the Otago Peninsula
Dunedin Beach Homes for Sale
Maori Hill Property for Sale
Southland Property for Sale
Newmarketpropertyforsale
Otago Properties For Sale
Cashmere Real Estate
Avonhead Real Estate
Merivale Real Estate
Papanui Real Estate
Centralaucklandpropertyforsale
Nelson City Real Estate
Pukekohepropertyforsale
Howickpropertyforsale
Papakurapropertyforsale
Waiukupropertyforsale
Lakerotoitiproperty
Marlborough Sounds Property
Blenheim Real Estate For Sale
Dunedin Properties for Sale
Rotorua Lakes Property
Properties across Papamoa East for sale
Nelson Tasman Property
Taurangahomesforsale
Invercargill Real Estate for Sale
Otago Real Estate for Sale
Tepukeproperty
Ohoperealestate
Opotikirealestate
Tepukepropertyforsale
Papamoarealestate
Omokoroapropertyforsale
Waihipropertyforsale
Katikatirealestateforsale
Dunedin Real Estate for Sale
Real Estate For Sale in Christchurch
Properties For Sale in North Canterbury
North Canterbury Real Estate for Sale
Tasman Real Estate
Nelson Property For Sale
Kerikerirealestate
Cambridgepropertyforsale
Waikato properties For Sale
Hamilton Properties For Sale
Realestateforsaletauranga
Homesforsaletauranga
Bayofplentypropertyforsale
Realestatethelakes
Westaucklandhousesforsale
Centralaucklandrealestate
Teatataturealestate
Realestatepapamoa
Real Estate for sale in Browns Bay
Wellington Videos
Lake Tarawera Property
Mount Maunganui Property for sale
Lower Hutt Properties
Porirua Property
Waikato Real Estate
Taranaki Property
Christchurch Property
Rotorua Real Estate
Auckland Property
Wellington Property For Sale
Dunedin Property
Napier Real Estate
Mount Maunganui Real Estate
Taranaki Real Estate
Nelson Real Estate
New Plymouth Property
New Zealand Real Estate For Sale
Waikato Property
Hamilton Property
North Shore Property
Invercargill Real Estate
Queenstown Real Estate
Bay of Plenty Property
Auckland Real Estate
Blenheim Real Estate
Coromandel Real Estate
Gisborne Real Estate
Hastings Real Estate
Hawkes Bay Real Estate
Kaitaia Real Estate
Palmerston North Property
Taupo Property
Wanaka Real Estate
Wanganui Real Estate
Wellington Real Estate
Westcoast Real Estate
Whakatane Real Estate
Northland Real Estate For Sale
Thames Real Estate
Tauranga Property For Sale
SOLD
⨯
Sold
#337724
Auckland
Overview
Agents
Property Description
Questions
Location
Photographer
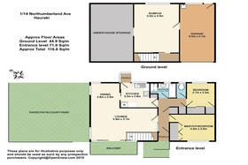
2
1
N/A
120
sqm
0
sqm
Sold
Auckland
ID# 337724
Auckland
proudly marketed by
Ron Sadler BCom, FPINZ, FNZIV, AREINZ
Sherryl Sadler
Barfoot & Thompson Ltd MREINZ - Devonport
View Agents Details
Ron Sadler BCom, FPINZ, FNZIV, AREINZ
021 613 546
09 445 2010
Profile
Email
Sherryl Sadler
021 617 854
09 445 2010
Profile
Email
Barfoot & Thompson Ltd MREINZ - Devonport
View Agents Details
Question
Please leave this field blank:
YOUR NAME
YOUR EMAIL
YOUR QUESTION
Upload by David Liu
Auckland North
This property was photographed by
David Liu
dave.liu@open2view.com
021 213 7801
email photographer
view photographer profile
More
Nelson Real Estate
Westown
Shotover Country Real Estate
Tai Tapu Real Estate
Jacks Point Real Estate For Sale
Camborne
Northwestaucklandpropertyforsale
Arthurs Point Real Estate
Hataitai
Lyttelton Real Estate
Quick Links
Latest Additions
Recent Sales
Local Salespeople
Local Schools
Contact Us
brought to you by Open2view.com®
Copyright 2021 Open2view.com®
✕
Ron Sadler BCom, FPINZ, FNZIV, AREINZ
Licensed Real Estate Salesperson (REAA 2008), Licensed Real Estate Agent (REA 2008), AREINZ, Member of the REINZ
021 613 546
09 445 2010
https://www.barfoot.co.nz/r.sadler
Profile
Email
Call
Sherryl Sadler
Licensed Real Estate Salesperson (REAA 2008), Member of the REINZ
021 617 854
09 445 2010
https://www.barfoot.co.nz/s.sadler
Profile
Email
Call